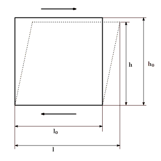
演習問題:応力とひずみ:せん断応力とせん断ひずみ[1]

図中の記号を用いて、せん断ひずみγを表せ。

解答例  問題TOP